4 Bedroom
2 Bathroom
1,100 - 1,500 ft2
Fireplace
Inground Pool
Central Air Conditioning
Forced Air
$949,900
Welcome to 10 Montrose St! Built as a model home by the unparalleled team at Rinaldi Homes, this updated 3+1, 2 bathroom backsplit is the ultimate family home. From the moment you step through the front door you will appreciate the soaring vaulted ceilings and the open floor plan filled with gorgeous natural light. The main floor of the home offers a spacious family room adorned with hardwood floors, a massive eat-in kitchen complete with stainless steel appliances & granite counters and direct access to the home's private enclosed 3 season sunroom that houses the hot tub that is the perfect place to end the day. Travel upstairs to find a large primary bedroom with a large walk-in closet, 2 additional spacious bedrooms (all bedrooms feature california shutters) and a spa-like 4 piece bathroom that includes a jetted bathtub. The lower level offers a huge rec room complete with a natural gas fireplace surrounded by luxurious stone, california shutters on the large windows and a full 3 piece bathroom. Down just a few steps you will find the basement level that offers a large workshop/gym area, a large laundry room, the home's 4th bedroom and a cold cellar. 10 Montrose's backyard is the place to be during the summer months! Featuring a large patio area, well placed low maintenance landscaping and a solar-heated, in-ground salt water pool (new liner in 2024) - your family and friends may never want to leave! Only a short drive away from 4th Avenue shopping, amazing dining, all other major amenities, The Marotta Family Hospital the 406 and QEW, award winning wineries and all the very best St. Catharines has to offer. (id:55499)
Property Details
|
MLS® Number
|
X12426953 |
|
Property Type
|
Single Family |
|
Community Name
|
462 - Rykert/Vansickle |
|
Equipment Type
|
None, Water Heater |
|
Features
|
Solar Equipment |
|
Parking Space Total
|
4 |
|
Pool Type
|
Inground Pool |
|
Rental Equipment Type
|
None, Water Heater |
Building
|
Bathroom Total
|
2 |
|
Bedrooms Above Ground
|
3 |
|
Bedrooms Below Ground
|
1 |
|
Bedrooms Total
|
4 |
|
Amenities
|
Fireplace(s) |
|
Appliances
|
Garage Door Opener Remote(s), Central Vacuum, Water Meter, Dishwasher, Dryer, Garage Door Opener, Stove, Washer, Window Coverings, Refrigerator |
|
Basement Development
|
Finished |
|
Basement Type
|
N/a (finished) |
|
Construction Style Attachment
|
Detached |
|
Construction Style Split Level
|
Backsplit |
|
Cooling Type
|
Central Air Conditioning |
|
Exterior Finish
|
Brick Facing, Vinyl Siding |
|
Fireplace Present
|
Yes |
|
Foundation Type
|
Poured Concrete |
|
Heating Fuel
|
Natural Gas |
|
Heating Type
|
Forced Air |
|
Size Interior
|
1,100 - 1,500 Ft2 |
|
Type
|
House |
|
Utility Water
|
Municipal Water |
Parking
Land
|
Acreage
|
No |
|
Sewer
|
Sanitary Sewer |
|
Size Depth
|
114 Ft ,9 In |
|
Size Frontage
|
46 Ft ,3 In |
|
Size Irregular
|
46.3 X 114.8 Ft |
|
Size Total Text
|
46.3 X 114.8 Ft |
Rooms
| Level |
Type |
Length |
Width |
Dimensions |
|
Second Level |
Primary Bedroom |
4.08 m |
4.08 m |
4.08 m x 4.08 m |
|
Second Level |
Bedroom 2 |
3.73 m |
3.18 m |
3.73 m x 3.18 m |
|
Second Level |
Bedroom 3 |
3.47 m |
3.25 m |
3.47 m x 3.25 m |
|
Second Level |
Great Room |
3.95 m |
12.38 m |
3.95 m x 12.38 m |
|
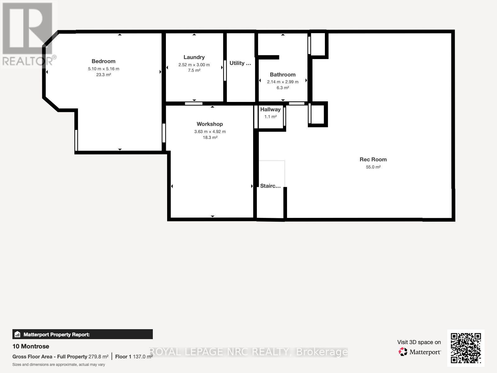
Basement |
Bedroom 4 |
5.1 m |
5.16 m |
5.1 m x 5.16 m |
|
Basement |
Laundry Room |
2.52 m |
3 m |
2.52 m x 3 m |
|
Main Level |
Foyer |
3.66 m |
1.7 m |
3.66 m x 1.7 m |
|
Main Level |
Living Room |
5.1 m |
3.44 m |
5.1 m x 3.44 m |
|
Main Level |
Kitchen |
3.53 m |
3.82 m |
3.53 m x 3.82 m |
|
Main Level |
Dining Room |
4.26 m |
3.86 m |
4.26 m x 3.86 m |
https://www.realtor.ca/real-estate/28913505/10-montrose-street-st-catharines-rykertvansickle-462-rykertvansickle